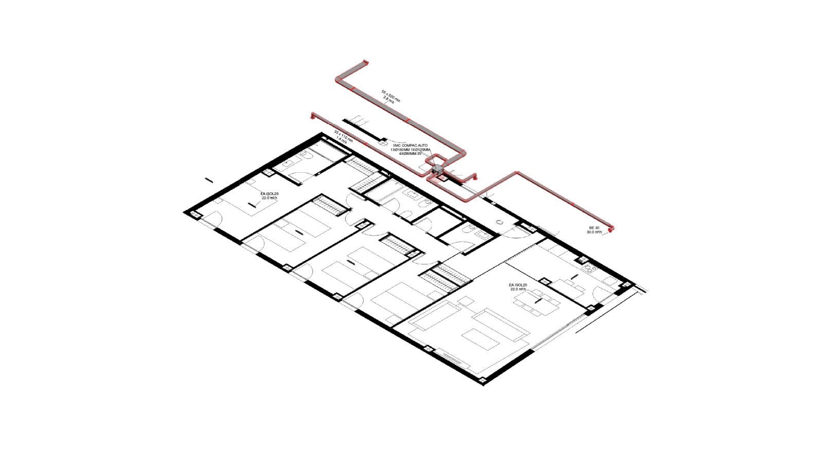
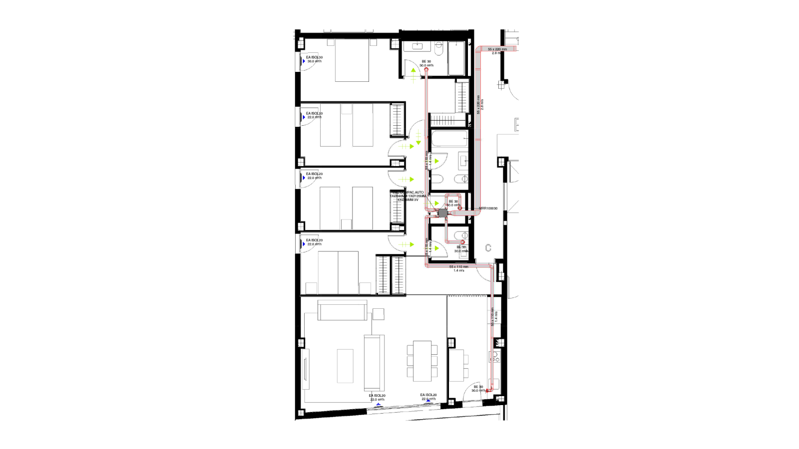
1
Toma de aire fresco
2
Equipo de ventilación
3
Redes de distribución
4
Bocas de extracción
5
Expulsión de aire viciado

Una solución práctica para edificios plurifamiliares que priorizan la funcionalidad y la eficiencia. Cada vivienda cuenta con un sistema autorregulable independiente que garantiza un flujo constante de aire fresco, adaptado a sus necesidades. Este diseño elimina interferencias entre unidades, asegurando privacidad y mejorando la calidad de vida de los residentes con un mantenimiento mínimo.

Ejemplos estudios con BIM

Otros sistemas de ventilación

Unidad de tratamiento del aire

Unidad de tratamiento del aire

Doble flujo

Doble flujo

Simple Flujo Higrorregulable

Simple Flujo Higrorregulable

Simple Flujo Autorregulable

Simple Flujo Autorregulable

Garajes

Garajes

Terciario

Terciario

Gas Radón

Gas Radón

Unifamiliar

Unifamiliar

Plurifamiliar

Plurifamiliar

Rehabilitación

Rehabilitación

Productos

Productos

Componentes

Componentes